«Янтарь» (Монолитный пенобетон)
2 этажа, 3 комнаты, общая площадь 210.00 кв.м.

Общая площадь:
210.00 кв.м.
Технология:
Монолитный пенобетон
Количество этажей:
2
Количество комнат:
3
Количество ванных:
2
Стоимость дома
от 2 985 000 руб.
Характеристики проекта:
- Тип фундамента: Ленточный, перекрытый монолитной ж/б плитой
- Тип наружных стен: Монолитный пенобетон
- Тип внутренних стен: ГКЛ, утеплитель / Пазогребневые плиты
- Тип перекрытий: ЛСТК / Монолитный пенобетон/Брус
- Крыша: Стропильная конструкция (дерево)
- Тип кровли: Металлочерепица / Гибкая черепица
- Наружная отделка: Декоративный камень / Штукатурка / Облицовочный кирпич
- Наружная отделка цоколя: Облицовочный искусственный камень
- Количество этажей: 2
- Высота 1-го этажа: 3 м
- Высота 2-го этажа: 2.85 м
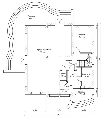
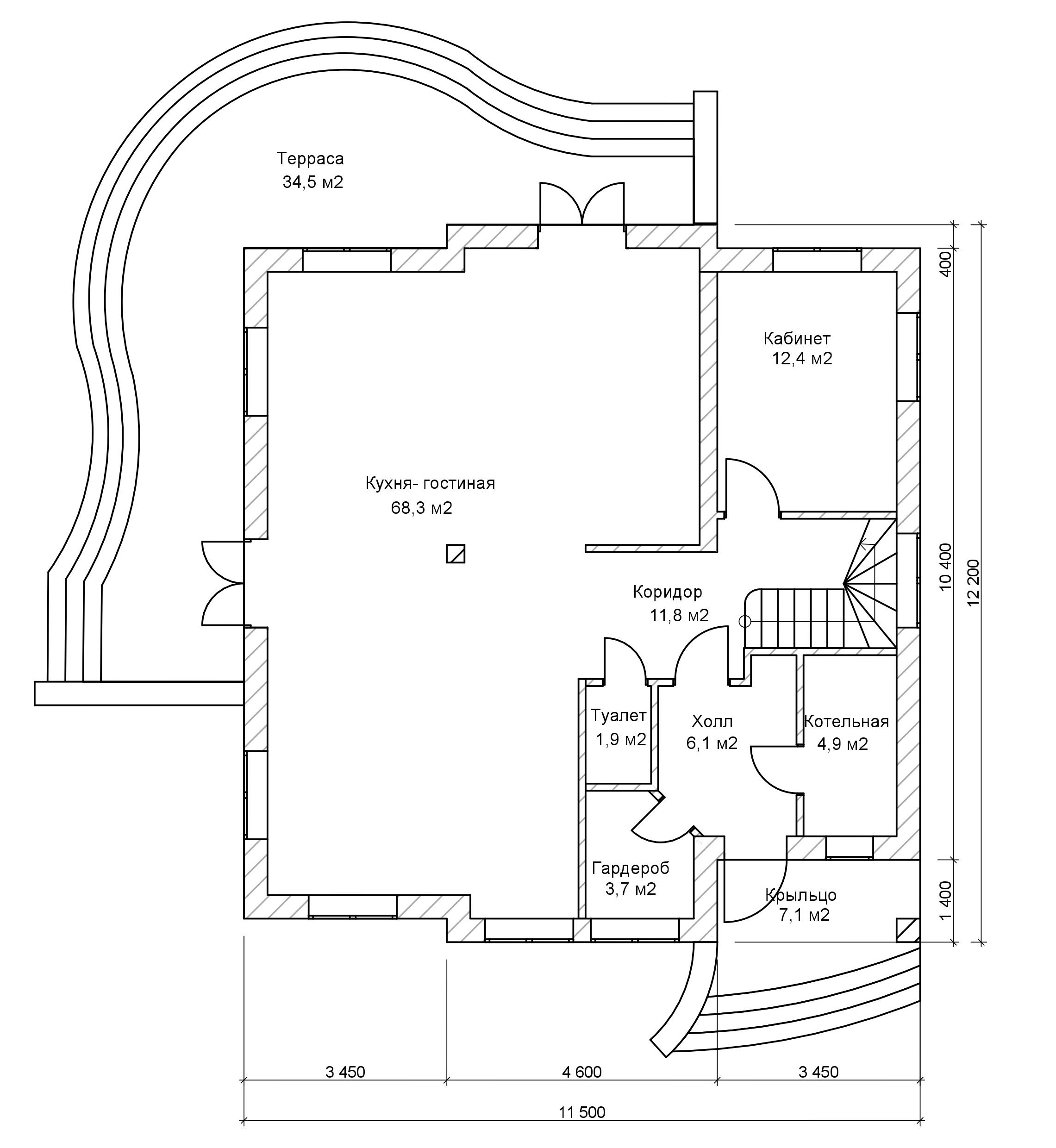
- Площадь общая/жилая: 210 / 46 м2
- Количество жилых комнат: 3
- Дополнительные опции: 2 балкона, большая открытая терраса
Этот интересный проект двухэтажного загородного дома с террасой, общей площадью 210 кв.м., может стать отличной находкой для людей, которые всерьез задумываются о том, чтобы перебраться всей семьей за пределы города.
На первом этаже разместились просторная кухня-гостиная, прихожая, гардероб, котельная, санузел и большая открытая терраса. На втором этаже находятся три спальных комнаты, две из которых имеют выходы на балкон. Каждая комната оборудована отдельным гардеробом. На этаже также нашлось место и для двух ванных комнат.

