«ВАРЯГ 2» (Оцилиндрованное бревно)
2 этажа, 4 комнаты, общая площадь 62.00 кв.м.

Общая площадь:
62.00 кв.м.
Технология:
Оцилиндрованное бревно
Количество этажей:
2
Количество комнат:
4
Количество ванных:
1
Стоимость дома
от 294 400 руб.
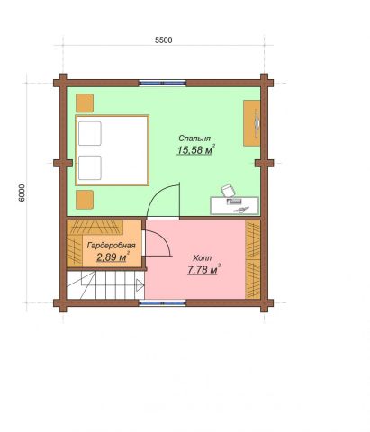
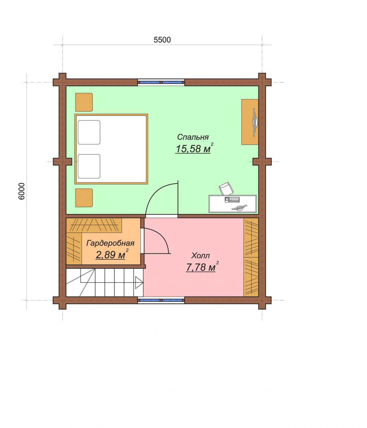
Характеристики проекта:
- Общая площадь: 62 м2
- Линейные размеры: 5,5*6
- Площадь застройки: 50 м2
- Срок строительства: 20-30 раб. дней





