«ПРАГА» (Рубленное бревно)
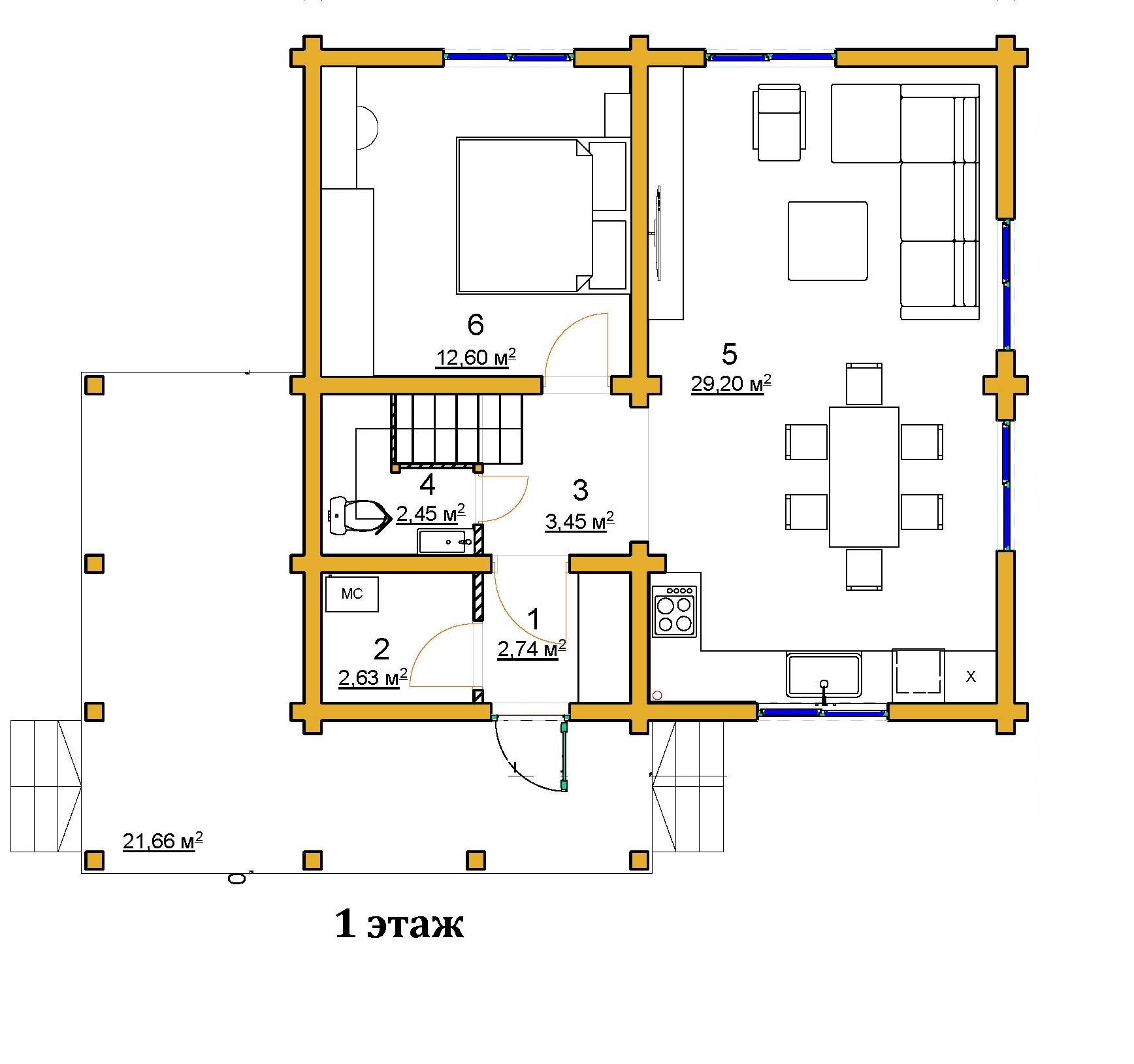
2 этажа, 4 комнаты, общая площадь 84.00 кв.м.

Общая площадь:
84.00 кв.м.
Технология:
Рубленное бревно
Количество этажей:
2
Количество комнат:
4
Количество ванных:
2
Стоимость дома
от 2 390 000 руб.
Характеристики проекта:
- Общая площадь: 84 м2
- Линейные размеры: 9,2*8
- Площадь застройки: 85 м2
- Срок строительства: 30-45 раб. дней



