«НАДЕЖДА» (Оцилиндрованное бревно)
2 этажа, 3 комнаты, общая площадь 85.00 кв.м.

Общая площадь:
85.00 кв.м.
Технология:
Оцилиндрованное бревно
Количество этажей:
2
Количество комнат:
3
Количество ванных:
1
Стоимость дома
от 377 200 руб.
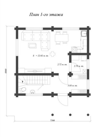
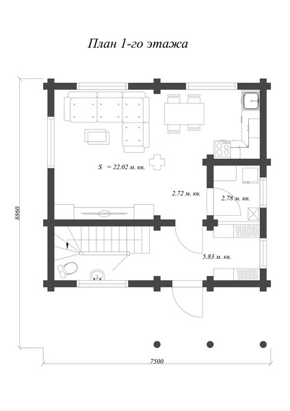
Характеристики проекта:
- Общая площадь: 85 м2
- Линейные размеры: 7.7х7.7м
- Площадь застройки: 58 м2
- Количество этажей: 2
- Количество жилых комнат: 3
- Санузел: совмещенный
- Срок строительства: 20 - 30 раб. дней
По желанию заказчика мы можем выполнить всю чистовую отделку дома
и прокладку коммуникаций.





