«МАЭСТРО» (Оцилиндрованное бревно)
1 этаж, 6 комнат, общая площадь 180.00 кв.м.

Общая площадь:
180.00 кв.м.
Технология:
Оцилиндрованное бревно
Количество комнат:
6
Количество ванных:
2
Стоимость дома
от 677 120 руб.
Характеристики проекта:
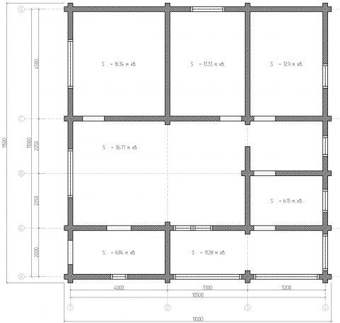
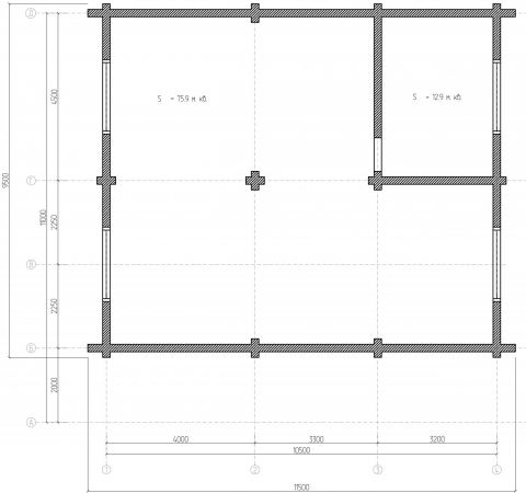
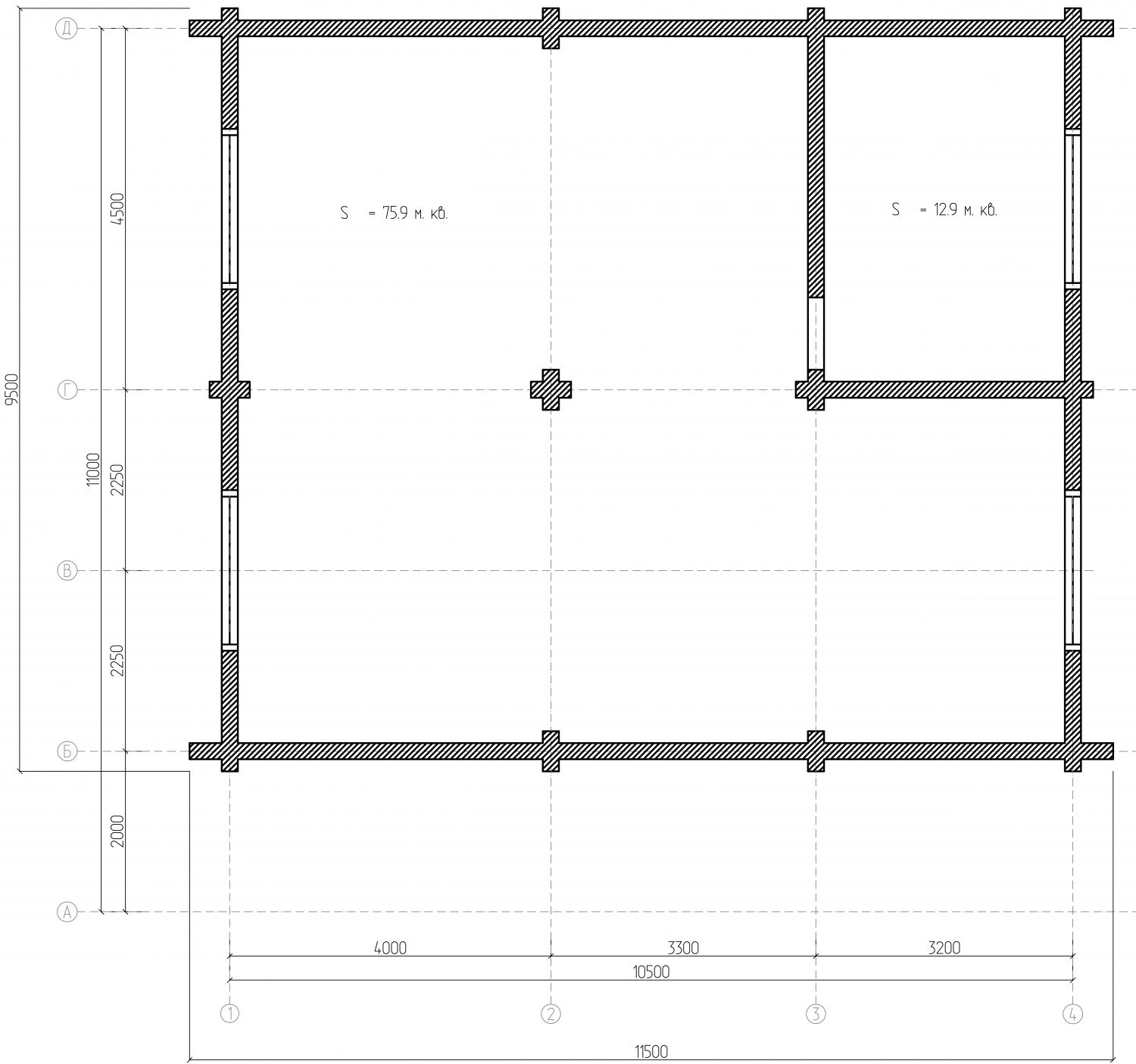
- Общая площадь: 180 м2
- Линейные размеры: 11.5х10.5 м
- Площадь застройки: 120 м2
- Количество этажей: 2
- Количество жилых комнат: 6
- Санузел: совмещенный
- Срок строительства: 25 - 45 раб. дней
По желанию заказчика мы можем выполнить всю чистовую отделку дома
и прокладку коммуникаций.





