«КАНЦЛЕР» (Профилированный брус)
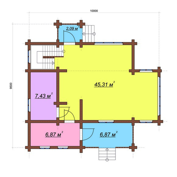
2 этажа, 5 комнат, общая площадь 127.00 кв.м.

Общая площадь:
127.00 кв.м.
Технология:
Профилированный брус
Количество этажей:
2
Количество комнат:
5
Количество ванных:
2
Стоимость дома
от 831 250 руб.
Характеристики проекта:
- Общая площадь: 127 м2
- Линейные размеры: 9.5х10.8 м
- Площадь застройки: 80 м2
- Количество этажей: 2
- Количество жилых комнат: 5
- Санузел: совмещенный
- Срок строительства: 25 - 45 раб. дней
По желанию заказчика мы можем выполнить всю чистовую отделку дома
и прокладку коммуникаций.





