«ГЕРЦОГ» (Оцилиндрованное бревно)
2 этажа, 10 комнат, общая площадь 338.00 кв.м.

Общая площадь:
338.00 кв.м.
Технология:
Оцилиндрованное бревно
Количество этажей:
2
Количество комнат:
10
Количество ванных:
2
Количество гаражей:
1
Стоимость дома
от 1 223 600 руб.
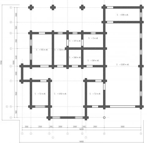
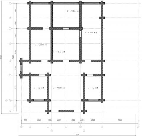
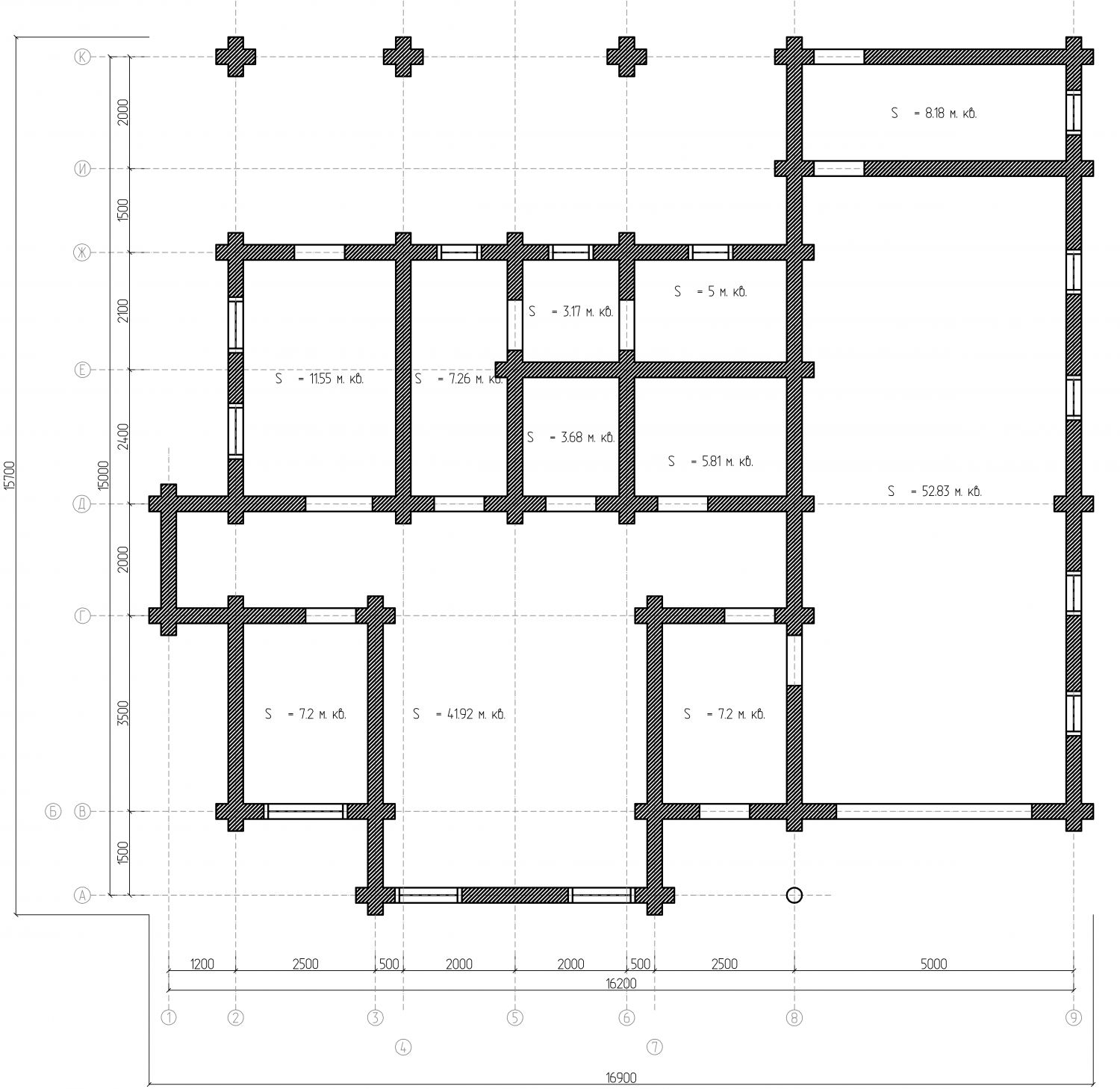
Характеристики проекта:
- Общая площадь: 338 м2
- Линейные размеры: 15.7х16.9 м
- Площадь застройки: 265 м2
- Количество этажей: 2
- Количество жилых комнат: 10
- Санузел: совмещенный
- Срок строительства: 120 - 150 раб. дней
По желанию заказчика мы можем выполнить всю чистовую отделку дома
и прокладку коммуникаций.





