«ДАЧНЫЙ» (Профилированный бревно)
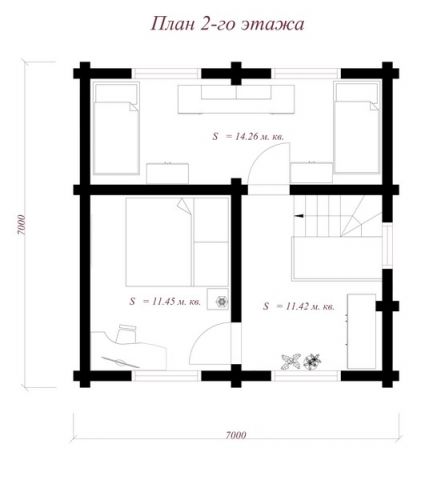
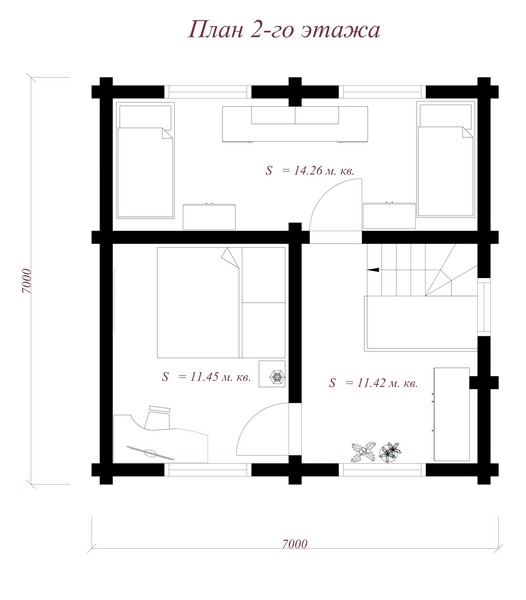
2 этажа, 3 комнаты, общая площадь 70.00 кв.м.

Общая площадь:
70.00 кв.м.
Технология:
Профилированный брус
Количество этажей:
2
Количество комнат:
3
Количество ванных:
1
Стоимость дома
от 322 000 руб.
Характеристики проекта:
- Общая площадь: 70 м2
- Линейные размеры: 7х7м
- Площадь застройки: 50 м2
- Количество этажей: 2
- Высота этажа:3 м
- Количество жилых комнат: 3
- Санузел: совмещенный
- Срок строительства: 25 - 45 раб. дней
По желанию заказчика мы можем выполнить всю чистовую отделку дома
и прокладку коммуникаций.





