«АСТРА» (Оцилиндрованное бревно)
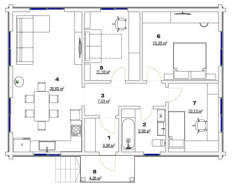
1 этаж, 4 комнаты, общая площадь 85.00 кв.м.

Общая площадь:
85.00 кв.м.
Технология:
Оцилиндрованное бревно
Количество этажей:
1
Количество комнат:
4
Количество ванных:
1
Стоимость дома
от 1 500 000 руб.
Характеристики проекта:
- Общая площадь: 84,5 м2
- Линейные размеры: 11,4*9,2
- Площадь застройки: 85 м2
- Срок строительства: 20 - 30 раб. дней


